
Promotion
Villas
Orny - Construction d'une villa individuelle et de deux villas mitoyennes
Informations techniques
Adresse | Chemin de la Pièce |
NP / Ville | 1317 Orny |
Prix de départ | sur demande |
Frais annexes | vente sur plans |
Type de vente | vente sur plans |
Objets disponibles | 5 villas |
Divers | Finitions à choix (cuisine, sanitaire, carrelage) |
Présentation
Magnifiques villas de 4.5 à 5.5 5pces.
Exécuté avec des matériaux de qualités, par des entreprises régionales, ces logements se compose de la
manière suivante:
manière suivante:
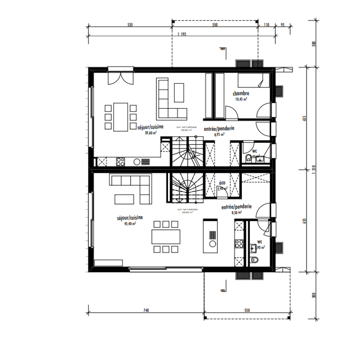
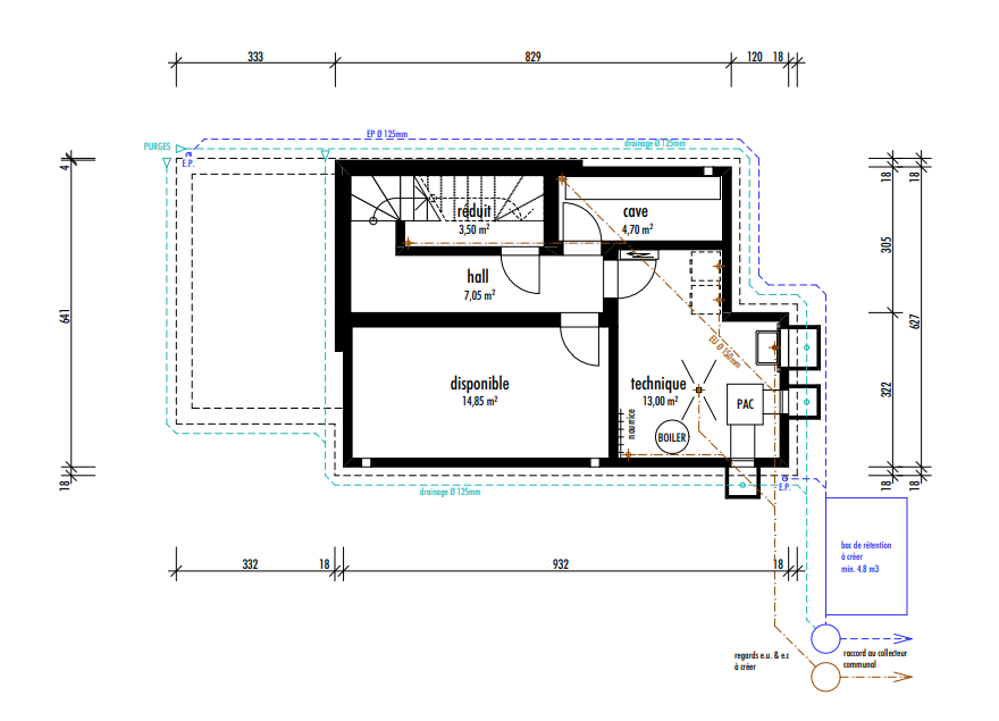
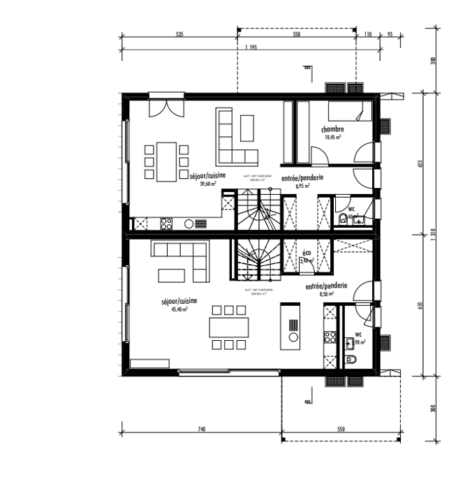
Pour la villa individuelle :
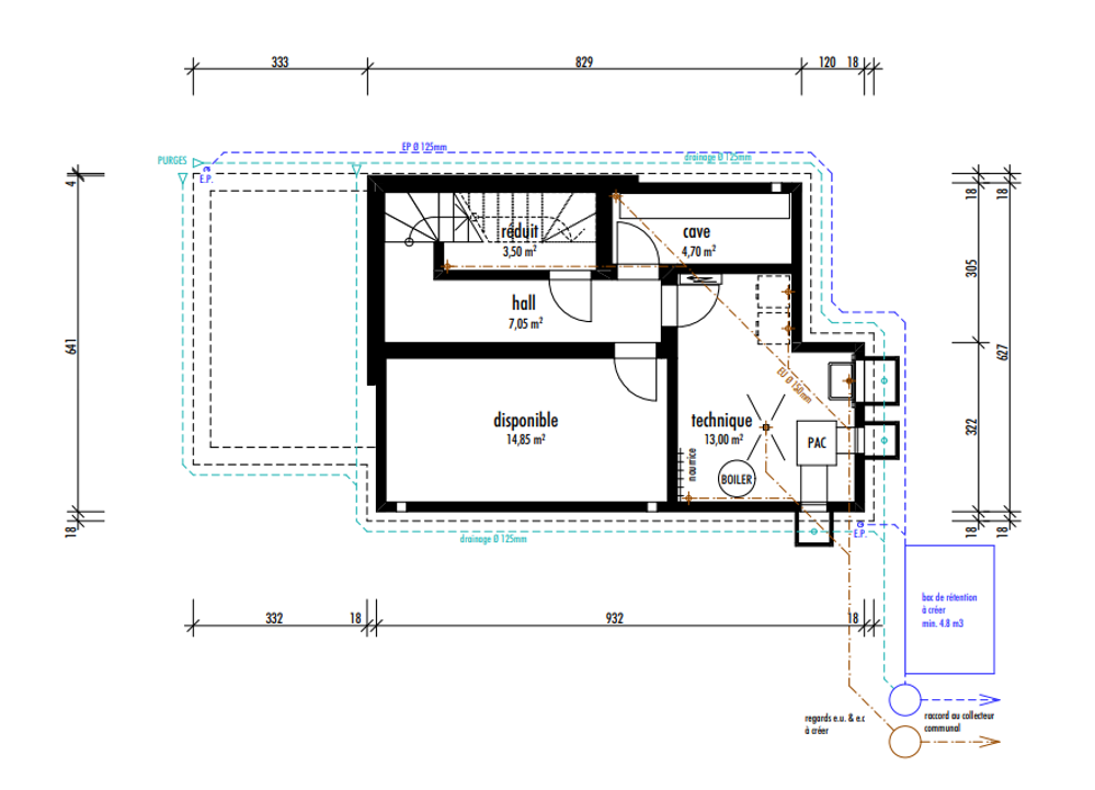
Au sous-sol :
Un hall deservant un local technique, une cave, un disponible et un réduit.
Au rez-de-chaussée :
Un hall d'entrée avec son vestiaire, un WC, un séjour/salle à manger, une cuisine avec ilôt et une chambre.
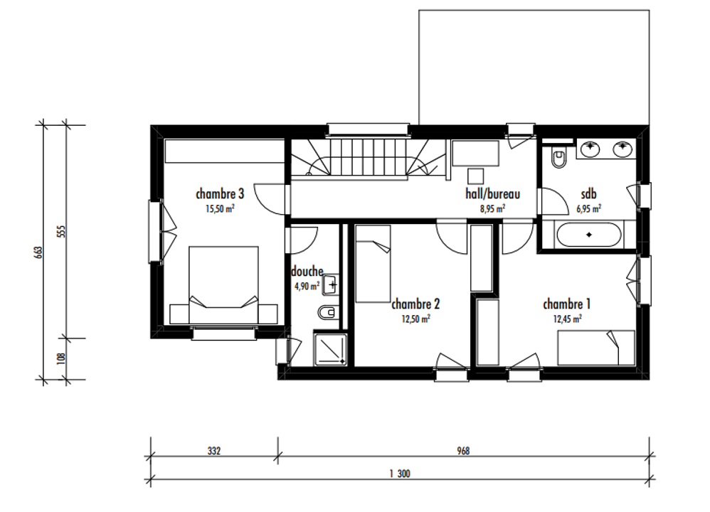
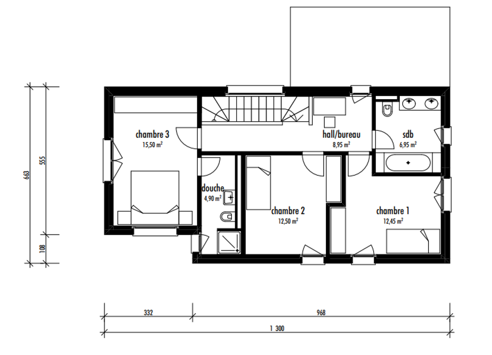
A l'étage:
Un hall/bureau, une suite parentale avec son WC/douche privatif ainsi que 2 chambres et une grande salle de bain.
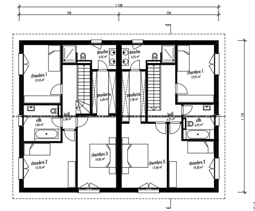
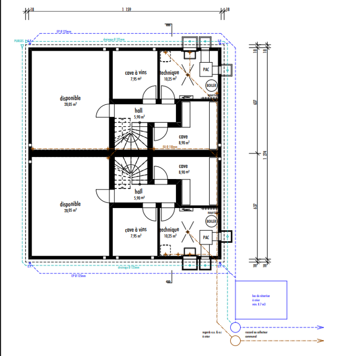
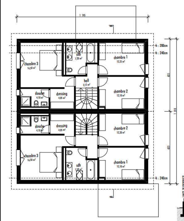
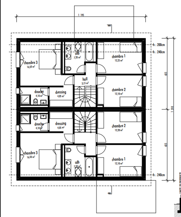
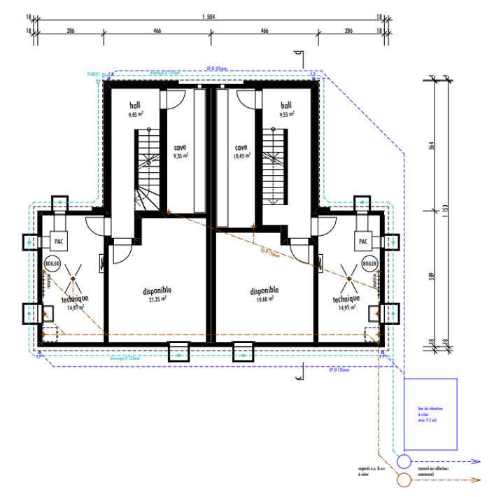
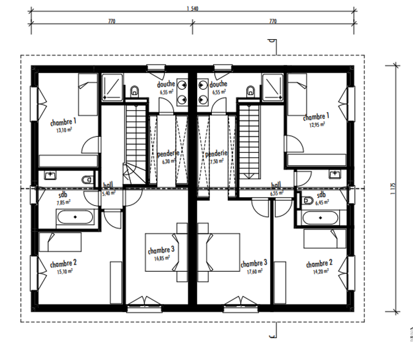
Pour les villas mitoyennes coté champs :
Au sous-sol :
Un hall deservant un local technique, une cave, un disponible et une cave à vin.
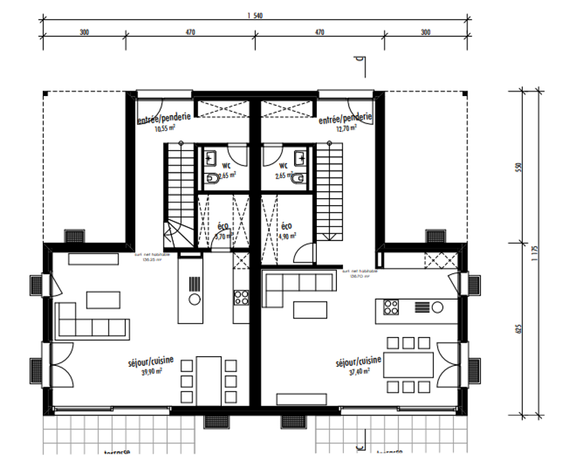
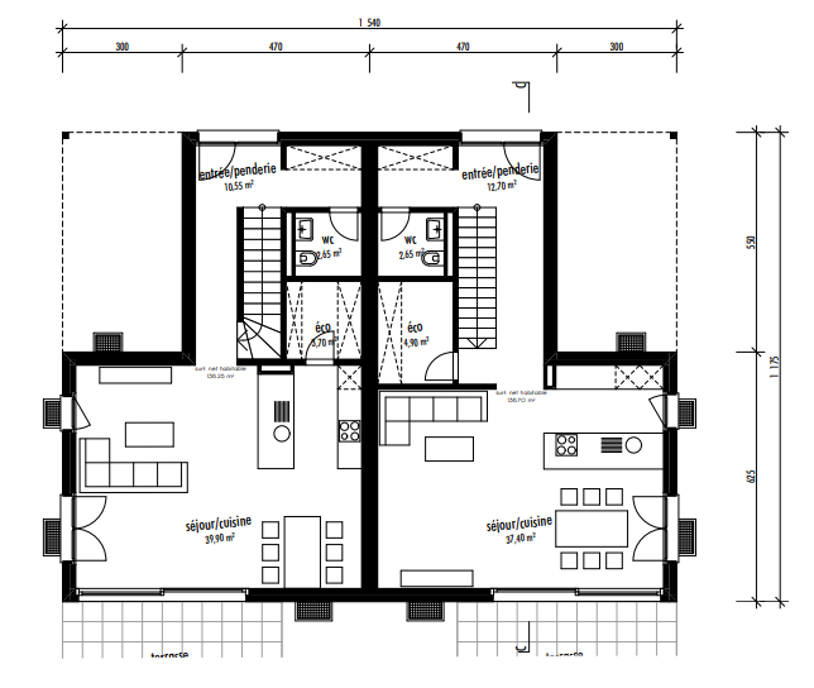
Au rez-de-chaussée :
Un hall d'entrée avec son vestiaire, un WC, un séjour/salle à manger, une cuisine et une chambre en option.
A l'étage:
Un hall, une suite parentale avec son dressing et son WC/douche privatif ainsi que 2 chambres et une grande salle de bain.
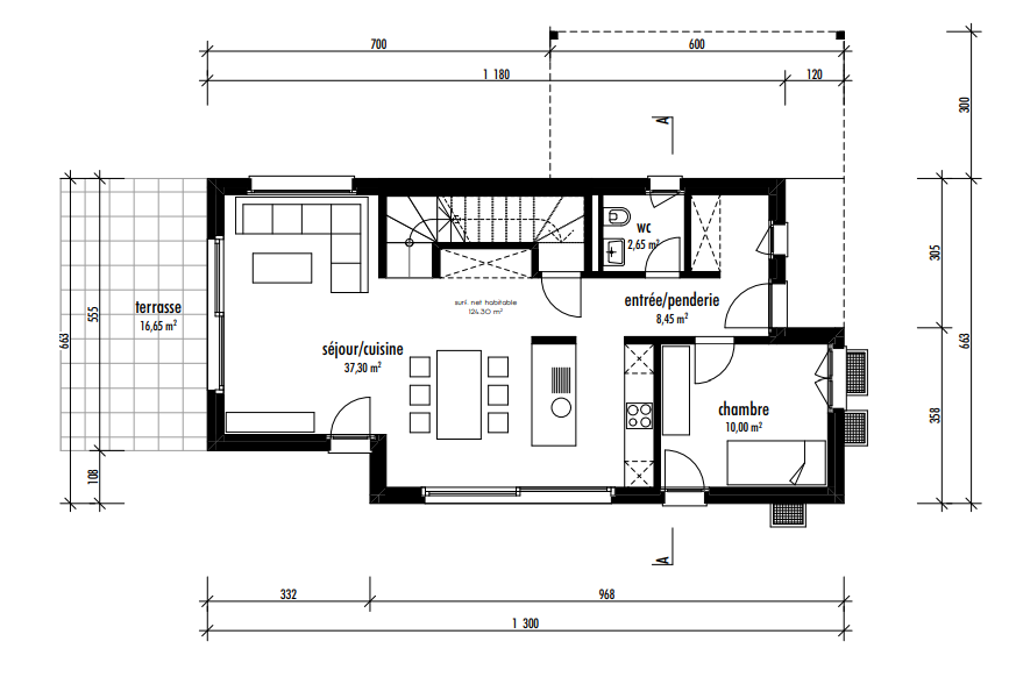
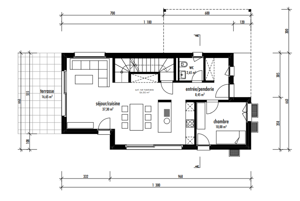
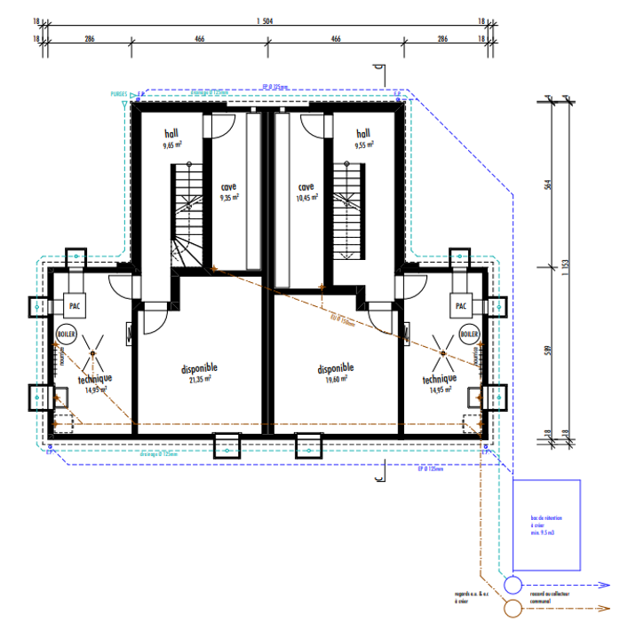
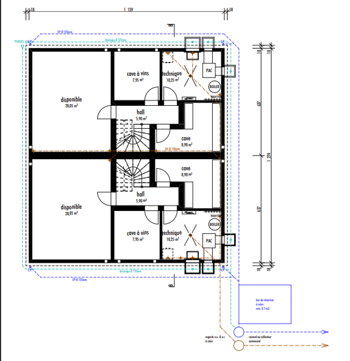
Pour les villas mitoyennes coté route :
Au sous-sol :
Un hall deservant un local technique, une cave et un disponible.
Au rez-de-chaussée :
Un hall d'entrée avec son vestiaire, un WC, un séjour/salle à manger, une cuisine avec économat.
A l'étage:
Un hall, une suite parentale avec son dressing et son WC/douche privatif ainsi que 2 chambres et une grande salle de bain.
Situation
Impasse de la source
Le Rosset
1489 Murist FR