Accéder au contenu principal
Promotion
Villas

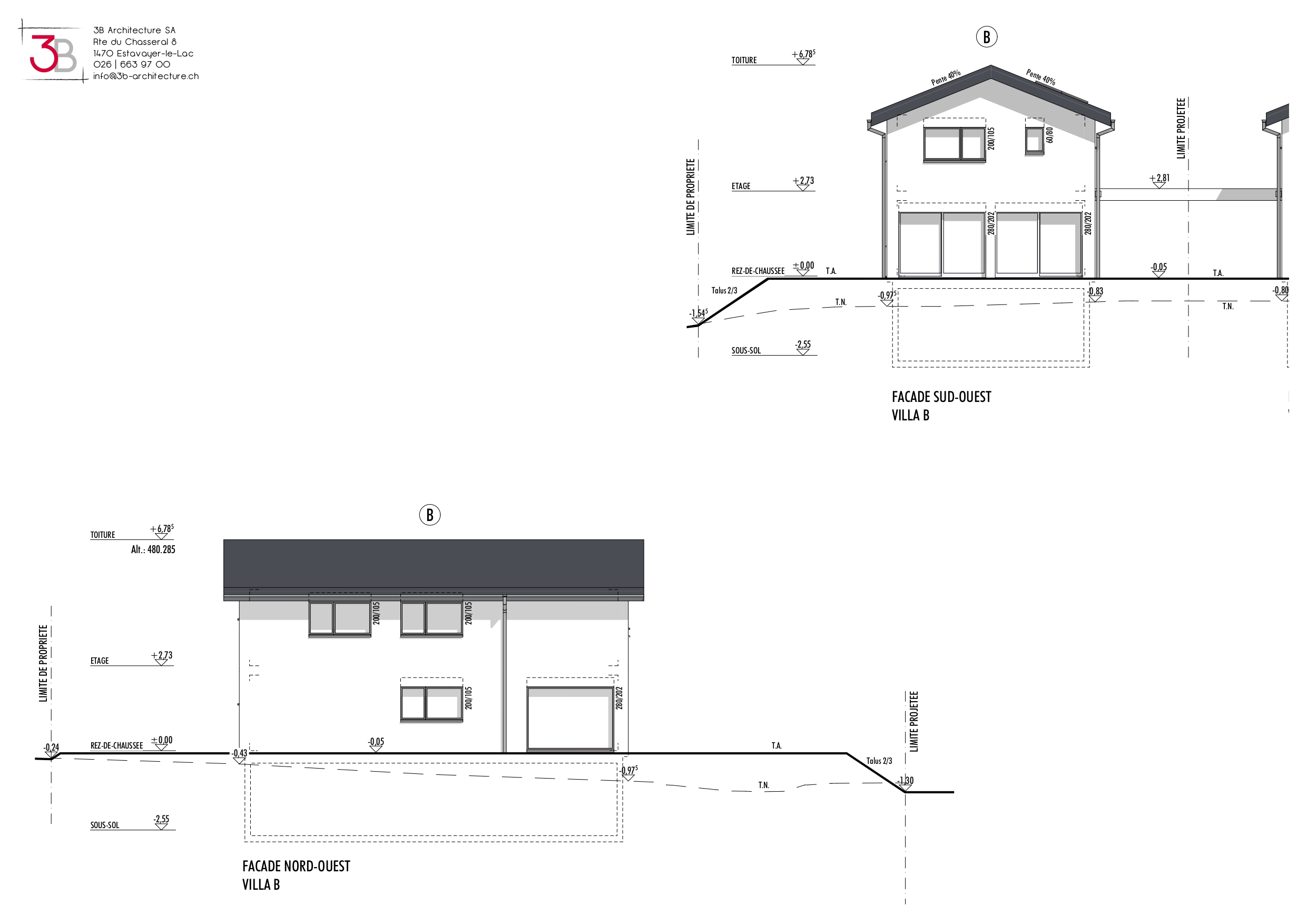
Corcelles-Près-Payerne Construction de 2 villas jumelées

Informations techniques

Adresse
Chemin de l'Arzilier
NP / Ville
1562 Corcelles-Près-Payerne
Prix de départ
sur demande
Frais annexes
vente sur plans
Type de vente
vente sur plans
Objets disponibles
2 villas jumelées (Réservées)
Divers
Finitions à choix (cuisine, sanitaire, carrelage)

Présentation

Réservées

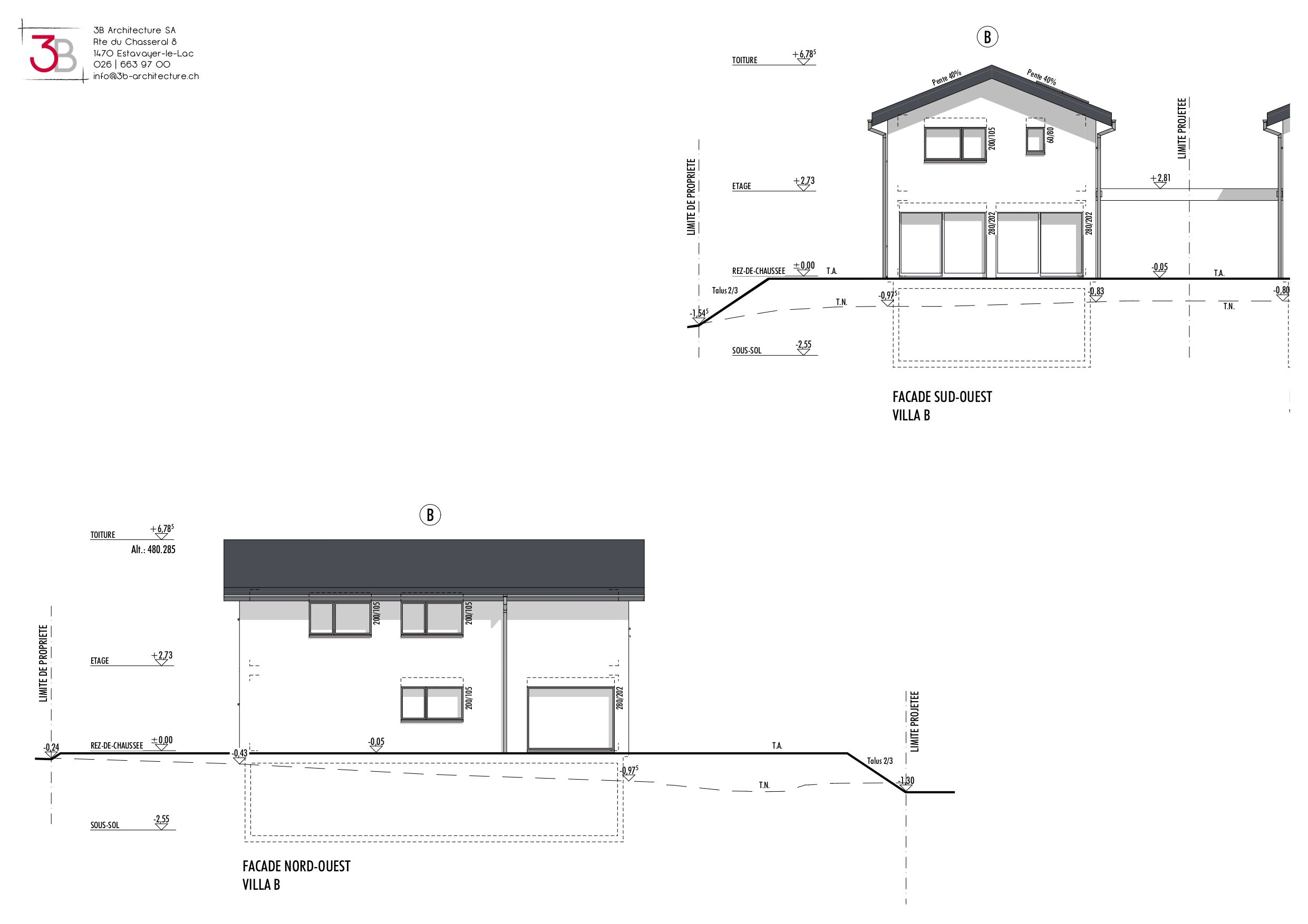
Magnifiques villas de 4.5 5pces jumelées par un couvert à voiture.

Exécuté avec des matériaux de qualités, par des entreprises régionales, ces logements se compose de la
manière suivante:
 
Au sous-sol :
un sous-sol complet disposant d'un hall, d'un local technique, d'une buanderie, d'une cave, d'un disponible et d'une cave à vin.
 
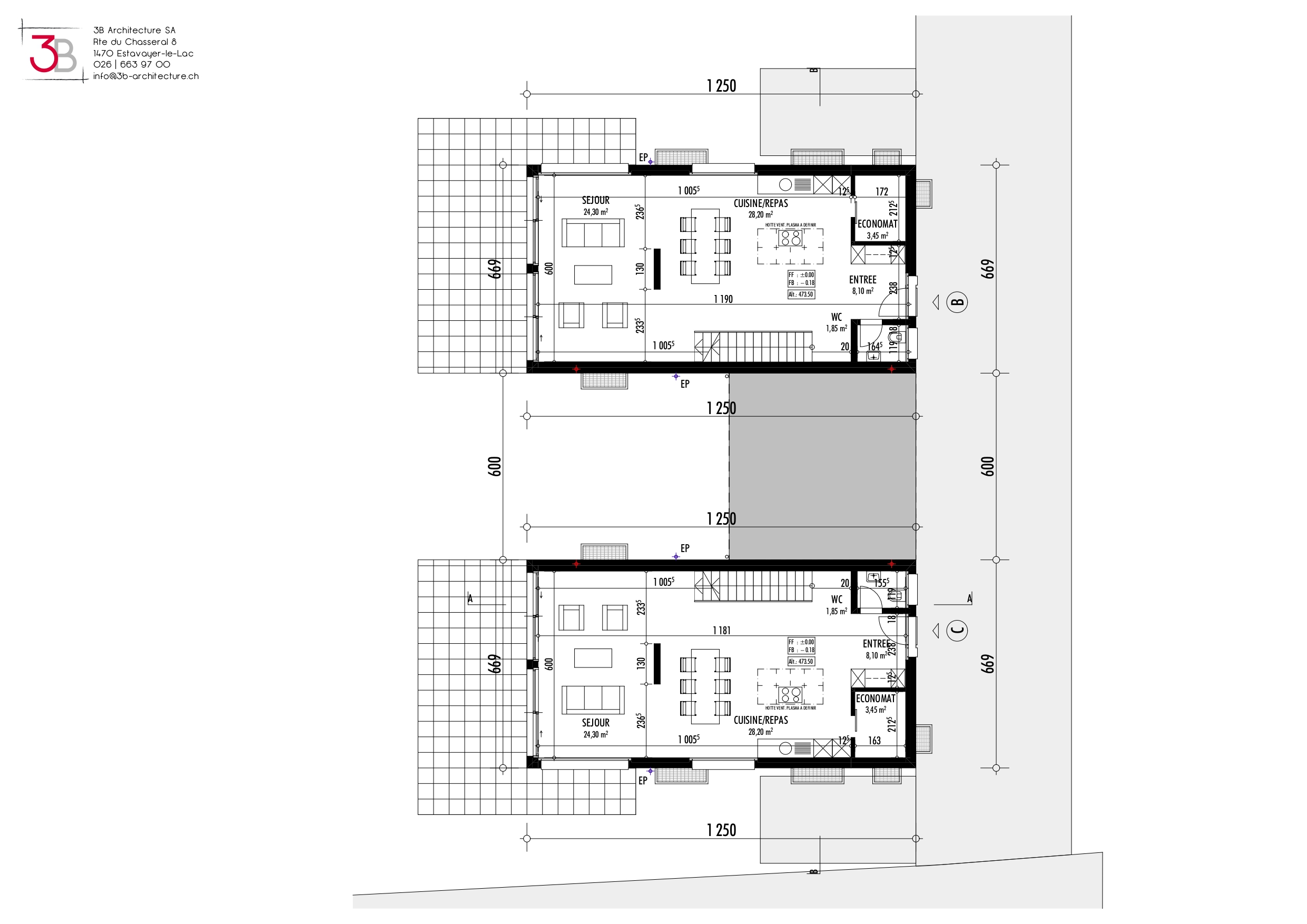
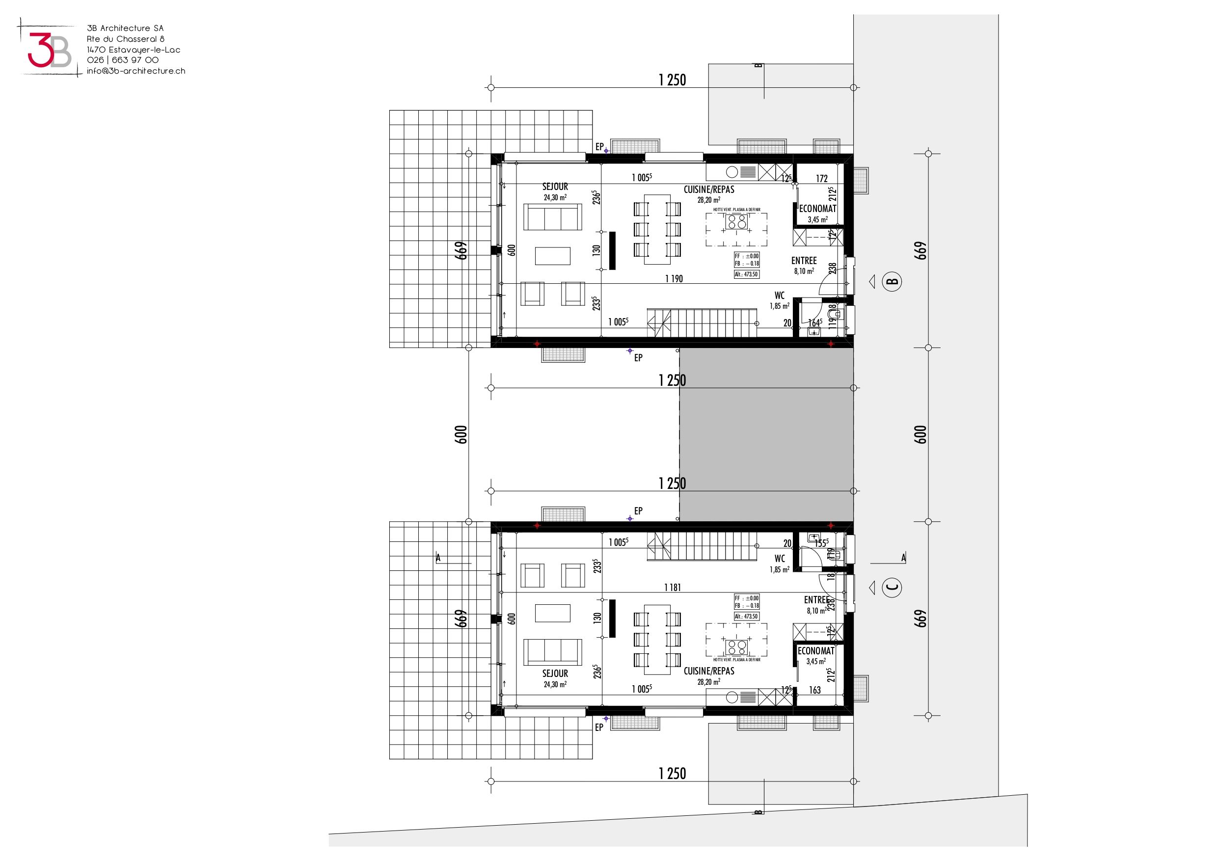
Au rez-de-chaussée :
Un hall d'entrée avec son vestiaire, séjour, cuisine et salle à manger ainsi qu'un économat et un WC.

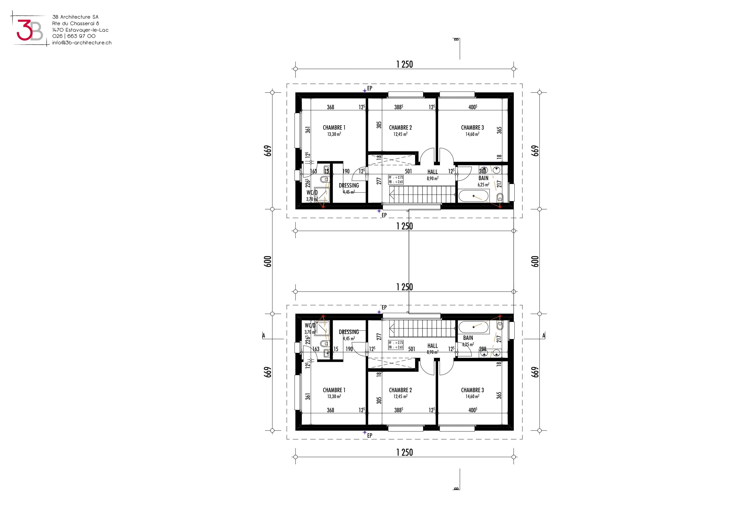
A l'étage:
3 chambres dont un suite parentale avec son dressing et son WC/douche privatif, et une grande salle de bain.
 
Situation

Ce model de villa vous intéresse?

Contactez-nous